Danes, 6. januarja, so v prostorih urada župana Mestne občine Slovenj Gradec podpisali pogodbo med naročnikom in izvajalci investicije, za izgradnjo bloka s 54 neprofitnimi stanovanji.

Pogodbo o izgradnji večstanovanjskega bloka neprofitnih stanovanj, ki bo v prihajajočem obdobju pomembno prispevala k reševanju stanovanjske problematike v mestni občini, so opoldne podpisali župan Tilen Klugler v imenu naročnika ter predstavnika izvajalcev, Branko Kuster, Gradbeništvo Kuster in Peter Marko, MarkoMark Nival, so zapisali na spletni strani MO Slovenj Gradec.
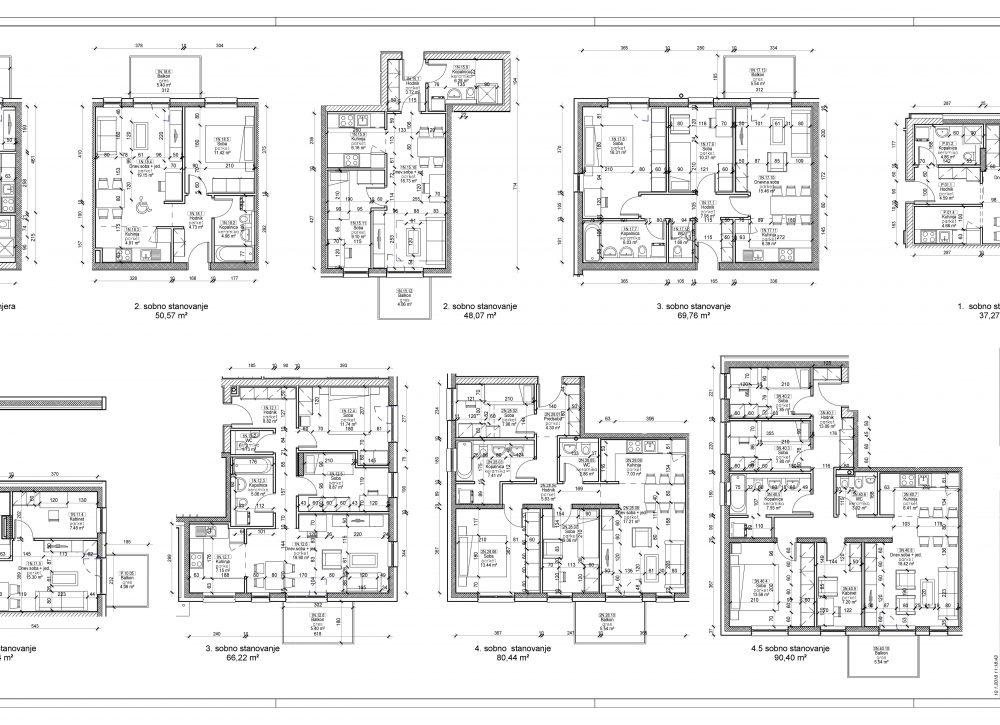
"Stanovanjski blok s 54 neprofitnimi stanovanji različnih velikosti in v šestih etažah (garaža, pritličje in štiri nadstropja) bo v Slovenj Gradcu pomembno pripomogel k razreševanju stanovanjske problematike upravičencev za dodelitev neprofitnih stanovanj. Projekt bloka pri razporeditvi, izgradnji in tudi uporabi materialov sledi trenutnim trendom na tem področju, v njem pa bodo enosobna, dvosobna, dvoinpolsobna, ter štiri in štiriinpolsobna stanovanja," pojasnjujejo na spletni strani občine.
Stanovanjski blok bo pravokotne oblike, vzporeden z dovozno cesto tlorisa 56,67 x 19,03 m. Neto tlorisna površina bloka bo okoli 5000,00 m² stanovanj pa 3.200,00 m². Fasada je zasnovana kot tankoslojna fasada – v svetlih odtenkih v določenih delih z leseno finalno oblogo iz vertikalnih letev. Streha je zasnovana kot zelena streha, pohodna samo za vzdrževanje. Okna bodo v leseni in aluminijasti izvedbi. V garaži bo poleg shramb zagotovljenih 22 parkirnih mest, poleg teh pa se bo zagotovilo še dodatnih 25 »zunanjih« parkirnih mest, skupaj torej 57 parkirnih mest.

Na zunanjih površinah so predvidene zelene površine z urejeno trato ter otroškim igriščem in zasaditvijo z drevesi ter grmovnicami. Uporabile se bodo avtohtone travne, zeliščne, grmovne in drevesne vrste. Površine, namenjene pešcem bodo omogočale samostojno gibanje funkcionalno oviranim osebam in bodo brez grajenih in komunikacijskih ovir. Omogočen bo dostop invalidnim osebam. Prometna ureditev se z izgraditvijo bloka bistveno ne bo spremenila. Dostop do objekta bo zagotovljen z dovozno cesto preko obstoječega cestnega priključka iz Celjske ceste.
Preberite tudi: “Vile Homški Park”: Nova priložnost za mlade družine iz Slovenj Gradca in okolice (VIDEO in FOTO)
Kjer dodajajo: "Namen izgradnje bloka neprofitnih stanovanj Polje je revitalizacija degradiranega območja znotraj mesta v urejeno javno površino, kar povečuje učinkovitost rabe prostora znotraj mest in izboljšanje kakovosti urbanega okolja oz. javnih površin. Povečana bo atraktivnost mesta in izboljšana kakovost bivanja. Projekt izgradnje tudi sledi viziji Mestne občine Slovenj Gradec po zagotovitvi zadostnega in primernega bivalnega okolja – neprofitnih stanovanj ranljivim skupinam oz. družinam, ki izpolnjujejo pogoje za najem neprofitnih stanovanj in tako doseganje učinkov večje blaginje ljudi."
Izgradnjo bloka neprofitnih stanovanj Polje bo, poleg Mestne občine Slovenj Gradec, sofinancirala Republika Slovenija in Evropska unija iz Evropskega sklada za regionalni razvoj. Gre za sofinanciranje preko mehanizma Celostnih teritorialnih naložb (CTN), ki ga lahko izvajajo mestne občine v Republiki Sloveniji, vrednost celotne investicije pa znaša dobrih 3,6 milijona evrov. Rok za izgradnjo bloka je v začetku prihodnjega leta, tako da bi lahko že v začetku leta 2021 delili prve ključe.
Ministrstvo za okolje in prostor, MO Slovenj Gradec








